Villa Luxus-Immobilien zum Verkauf in Desenzano del Garda

Desenzano del Garda

Cod. h09-25-53

€ 1.890.000


Villa Luxus-Immobilien

Art der Immobilie

h09-25-53

Referenz Nummer

4

Schlafzimmer

3

Badezimmer

390

m2

Box triplo

Garage


Desenzano del Garda
In einer der exklusivsten Wohnlagen von Rivoltella bieten wir Ihnen eine wunderschöne, freistehende Villa neueren Baujahrs auf drei Ebenen, mit großem Privatgarten und großzügiger Garage.
Die Immobilie ist derzeit in zwei unabhängige Wohneinheiten unterteilt, kann jedoch problemlos und schnell wieder zu einer einzigen, prestigeträchtigen Residenz zusammengeführt werden.
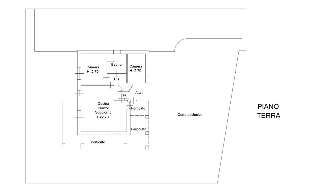
Raumaufteilung:
- Erdgeschoss: Helles Wohnzimmer mit offener Küche und Zugang zur überdachten Terrasse, Flur, Hauptschlafzimmer, zweites Schlafzimmer und Badezimmer mit Fenster.
- Untergeschoss: Intern über eine Treppe verbunden, ausgestattet mit zweitem Badezimmer mit Waschküche, zweiter Küche mit großem Essbereich sowie einem separaten Außenzugang.
Dank fensterhoher Lichtschächte sehr helles Raumgefühl.
- Obergeschoss: Dreizimmer-Wohnung mit Badezimmer und Balkon.
Zubehör und Ausstattung:
Im Untergeschoss befinden sich außerdem eine dreifache Garage, ein Technikraum und ein großer Kellerraum, alle intern mit dem Haus verbunden.
Der ca. 500 m² große Privatgarten umgibt die Villa und wird durch eine Rundumveranda auf drei Seiten sowie mehrere Außenstellplätze ergänzt.
Technische Ausstattung:
Autonome Heiz- und Kühlsysteme für jede Etage
Modernste Viessmann-Anlagen
Wasserenthärtungsanlage
Photovoltaikanlage
Alarmanlage
Kontrollierte Wohnraumlüftung

Die Möblierung ist nicht im Preis enthalten, kann jedoch auf Wunsch separat erworben werden.

Preis: € 1.890.000
Energieklasse: A2
Gardaffare – Tel. 030.9905461
Ref. 25-53

Nützliche Informationen


  • Lokalität: Desenzano del Garda - Brescia
  • Energieklasse: A2
  • IPE: 0 KWh/m²a
  • Zustand der Immobilie: Neu
  • Heizung: Unabhängige Heizung
  • Preis: € 1.890.000
  • Schlafzimmer: 4
  • Räume: 8
  • Badezimmer: 3
  • Terrasse: Vorhanden
  • Balkon: Vorhanden
  • Offene Küche
  • Box triplo
  • Privat Garten
  • Klimaanlage