Attico di lusso in Vendita a Desenzano del Garda

Desenzano del Garda

Cod. h05-25-26

€ 530.000


Attico di lusso

Tipo di proprietà

h05-25-26

Cod. Riferimento

2

Camere

2

Bagni

136

m2

Box singolo

Garage


Desenzano del Garda
Nuovo progetto per la realizzazione del RESIDENCE "SAN ZENO" che sorgerà a Rivoltella, Via San Zeno in ottima zona residenziale. Il complesso sarà costituito da 21 appartamenti con piscina condominiale, ampi garage e posti auto privati. Ci saranno varie tipologie quali TRILOCALI, QUADRILOCALI, PENTALOCALI ed ATTICI vista lago. Tutti gli appartamenti saranno serviti da ascensore ed avranno abbinati un box auto. Possibilità d'acquisto ulteriore posto auto esterno.
Il progetto è stato studiato nei minimi dettagli per conferire un DESIGN MODERNO, ELEVATO CONFORT e MASSIMO RISPARMIO ENERGETICO.

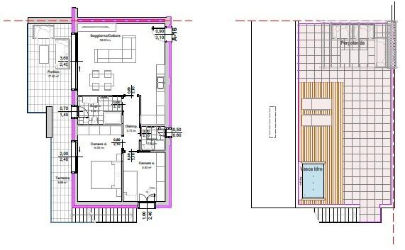
Attico trilocale al secondo ed terzo piano, composto da soggiorno con cucina a vista, disimpegno, due camere e due bagni. L'appartamento avrà un'ampia terrazza coperta con una scala privata che porterà al piano terzo sundek completo di una vasca idromassaggio privata. Completa la proprietà un garage singolo nell'interrato.
Consegna prevista fine 2026!

PREZZO 530.000 euro + Iva di legge
Per maggiori informazioni contattateci
Gardaffare 030.9905461.
Rif. 25-26.

Informazioni utili


  • Località: Desenzano del Garda - Brescia
  • Classe Energetica: A3
  • IPE: 0 KWh/m²a
  • Stato manutenzione: Nuovo
  • Riscaldamento: Autonomo
  • Prezzo: € 530.000
  • Camere: 2
  • Numero locali: 3
  • Bagni: 2
  • Terrazzi: Presente
  • Balcone: Assente
  • Angolo cottura
  • Box singolo
  • Giardino Condominiale
  • Predisposizione aria condizionata
  • Piscina
  • Ascensore

Immobili simili

Scopri cosa ti propone Gardaffare