Flat Luxury Properties for Sale in Desenzano del Garda

Desenzano del Garda

Cod. 26-17

€ 890.000


Flat Luxury Properties

Property type

26-17

Ref. Code

2

Bedrooms

1

Bathrooms

115

m2

Box single garage

Garage


Desenzano del Garda
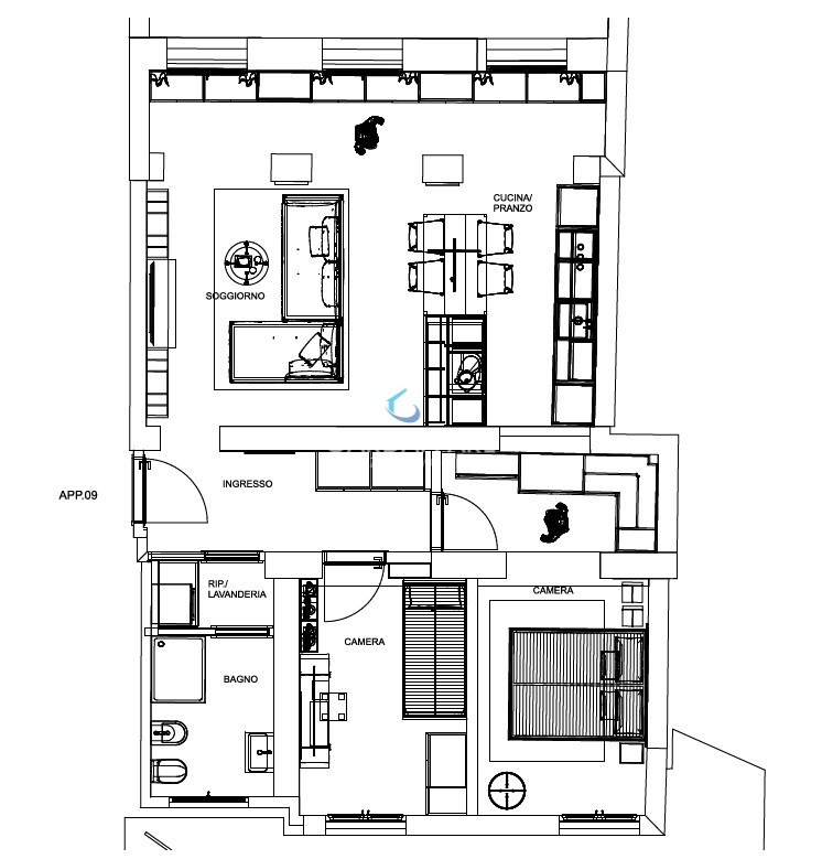
In a central, lakefront location, we present a new three-room apartment on the first floor, set within a unique historic residence currently undergoing complete renovation and expansion in HERITAGE STYLE. The villa will be divided into 19 one-of-a-kind apartments, served by two convenient elevators, garages, a garden, and a shared swimming pool.
The proposed apartment has a south–north exposure and consists of a bright living room with open-plan kitchen, balcony, hallway/laundry area, windowed bathroom, master bedroom, second bedroom, and a second balcony.
The property is completed by a single garage and a cellar in the basement.
Finishes and all technological systems will be of the highest standard, including underfloor heating, air conditioning, automated mechanical ventilation system, video intercom, and home automation. There is the possibility to choose finishes from a wide specification range, including fine woods, premium large-format porcelain stoneware tiles, Villeroy & Boch sanitary ware, Gessi faucets, etc.
Completion date: December 2026
Energy class: A4
Asking price: €890,000
For more information, please contact
Gardaffare +39 030 9905461Ref. 26-17

Useful information


  • Locality: Desenzano del Garda - Brescia
  • Energy rating: A4
  • IPE: 0 KWh/m²a
  • Maintenance status: Renovated
  • Heating: Autonomous heating
  • Price: € 890.000
  • Bedrooms: 2
  • Local number: 3
  • Bathrooms: 1
  • Terraces: Present
  • Balcony: Absent
  • Open kitchen
  • Box single garage
  • Communal garden
  • Air conditioning
  • Air conditioning predisposition
  • Swimming pool
  • Lift